Det er nå streik i hotell- og restaurantbransjen i Norge. Dette påvirker driften ved noen av våre hoteller, men de fleste holder åpent. Les mer

Find dit næste ophold

Vælg mellem almindelig hotelbestilling, bestilling med bonuspoint eller lavpriskalender.

Kursus og konference

Thon Hotel Oslofjord

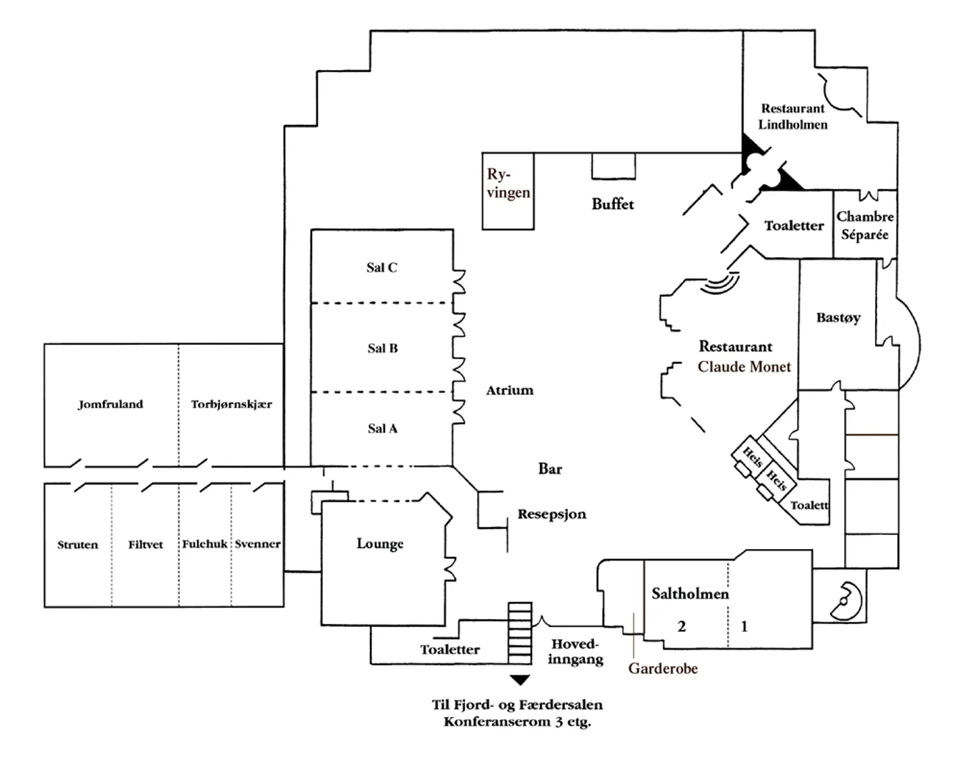
Thon Hotel Oslofjord i Sandvika er et af Norges største konferencehoteller med kapacitet op til 1.200 gæster og moderne teknisk udstyr.
Pausebuffet med fargerike energishots, grønne planter og urter rundt.
Thon_Hotel_Oslofjord_Konferanse_Pausemat

Mødelokale

Jomfruland

Biograf
80
Klasseværelse
60
Styrebord
24
Hestesko-opsætning
28
Areal: 92 m² Loftshøjde: 3 meter
Detaljebillede af Thon Hotels pen og notatblok

Bastøy

Biograf
80
Klasseværelse
64
Styrebord
24
Hestesko-opsætning
28
Areal: 73 m² Loftshøjde: 3 meter
Mødelokale med klasseværelse-opsætning med projektor

Torbjørnskjær

Biograf
50
Klasseværelse
34
Styrebord
20
Hestesko-opsætning
26
Areal: 65 m² Loftshøjde: 3 meter
Mødelokale med klasseværelse-opsætning med projektor og dagslys

Saltholmen

Banket
70
Biograf
142
Klasseværelse
86
Styrebord
34
Hestesko-opsætning
42
Areal: 102 m² Loftshøjde: 3 meter
konferencelokale Saltholmen
konferencelokale Saltholmen
konferencelokale Saltholmen

Ryvingen

Styrebord
10
Areal: 22 m² Loftshøjde: 4 meter
Mødelokale med langbord med blå stole og malerier på væggen

Jernholmen

Styrebord
9
Areal: 14 m² Loftshøjde: 3 meter
Detaljebillede af Thon Hotels pen og notatblok

Filtvet

Styrebord
8
Areal: 20 m² Loftshøjde: 3 meter
Detaljebillede af Thon Hotels pen og notatblok

Struten

Styrebord
8
Areal: 20 m² Loftshøjde: 3 meter
Detaljebillede af Thon Hotels pen og notatblok

Svenner

Styrebord
10
Areal: 36 m² Loftshøjde: 3 meter
Detaljebillede af Thon Hotels pen og notatblok

Større arrangementer

Fjord- og Færdersalen

Banket
700
Biograf
1200
Klasseværelse
700
Modtagelse
500
Areal: 1500 m² Loftshøjde: 4 meter
Konferencelokale med klasseværelse-opsætning med projektor

Fjordsalen

Banket
150
Biograf
500
Klasseværelse
260
Modtagelse
150
Styrebord
40
Hestesko-opsætning
50
Areal: 580 m² Loftshøjde: 5 meter
Stort konferencelokale i klasseværelse-opsætning, spotlight og scene med projektor

Færdersalen

Banket
300
Biograf
250
Klasseværelse
150
Modtagelse
300
Styrebord
40
Hestesko-opsætning
50
Areal: 431 m² Loftshøjde: 3,5 meter
Stort lokale med banket-opsætning til arrangementer

ABC-salen

Banket
180
Biograf
220
Klasseværelse
120
Styrebord
40
Hestesko-opsætning
56
Areal: 234 m² Loftshøjde: 4 meter
Stort lokale med banket-opsætning med belysning på væggene til arrangementer

Selskabslokaler

Vores selskabslokaler passer til enhver lejlighed. Uanset om du planlægger fødselsdag, bryllup, dåb, konfirmation eller en storslået banket for op til 750 personer, kan vi tilbyde de rigtige rammer til din dag.

Oppdekket langbord med oransje liljer på bordet, turkise stoler, blått maleri på veggen.
Bankett oppdekk med runde bord, hvite duker, svarte stoler, lysekroner i taket.
Thon_Hotel_Oslofjord_Konferanse_Oppdekk
Thon_Hotel_Oslofjord_Fader

Om hotellet

Fitness-rum

Aldersgrænse 15 år

Åbningstider

Alle dage
07.00 – 23.00
Kondisjons-apparater
Speil på veggen, diverse treningsapparater
Speil på veggen, diverse treningsapparater

Beliggenhed

  • 150 meter til busholdeplads
  • 800 meter til tog og flytog
  • 900 meter til Kadettangen badestrand
  • 69 km til Oslo Lufthavn Gardermoen
  • 8,6 km til golfbane
  • Hotellet ligger bare nogle få meter fra Sandvika Storsenter

Mad og drikke

  • Restaurant
  • Bar/Lounge
  • Lobbybar
  • Morgenmad inkluderet
  • Morgenmadsbuffet
  • Gratis kaffe i receptionen
  • Isterningemaskine

Generelt

  • Kæledyr må medbringes på enkelte værelser (+400 kr.)
  • Indkøbscenter i samme bygning
  • Lobby
  • Røgfrit hotel
  • Nøkkel i app
  • Familievenligt hotel
  • Allergivenlige værelser
  • Udtjekning via app
  • Innsjekk i app
  • Gratis trådløst internet

Tjenester

  • Bagageopbevaring
  • Døgnåben reception
  • Garderofaciliteter
  • Skopudsemaskine
  • Tøjrens
  • Aftenbemandet reception
  • Sen udtjekning ved ledig kapacitet
  • Tidlig indtjekning ved ledig kapacitet
  • Tøjvask
  • Vækning
  • Strygning
  • Kopimaskine

Mødelokalefaciliteter

  • Ballroom
  • Banketfaciliteter
  • Konferencelokaler
  • Mødelokaler
  • Videokonference

Tilgængelighed

  • Brandalarm for hørehæmmede
  • Elevator
  • Assisteret lytning
  • Kørestolsadgang

Parkering

  • Busparkering
  • Parkering i nærheden mod gebyr
  • Ladestation til el-bil i nærheden
  • Cykelparkering

Priser

  • Områdets bedste morgenmad

Miljø

  • Eco-Lighthouse

Følg os

Mad og drikkevarer

Morgenmadsbuffet

Åbningstider

Mandag – Fredag
06.30 – 09.30
Lørdag – Søndag
07.30 – 10.30
Thon_Hotels_Frokosttallerken

Frokost

Vi serverer frokost til vores kursus- og konferencegæster.

Åbningstider

Alle dage
11.30 – 13.30
Pausebuffet med diverse fargerik mat på etasjefat, og grønne planter.

Fjordpuben

I kælderen finder du vores egen natklub med plads til 220 festglade gæster – perfekt til en livlig aften.

Lindholmen Restaurant

Åbningstider

Mandag – Lørdag
18.00 – 21.00
Thon_Hotel_Oslofjord_Restaurant

Aktiviteter

kokkekursus

Tag med dine kolleger på kokkekursus, hvor I lærer at lave en ordentlig festmiddag med opdækket bord og alt, der hører sig til.

Kontakt os for yderligere oplysninger

E-mail
Telefon
67556600

Se på kort

Nærmeste hotel

Thon Hotel Astoria

Thon Hotel Vettre er et konferencehotel med 21 forskellige lokaler, med kapacitet til op til 138 personer.
Konferansevert klargjør pausebuffet på høybord i konferanseområde.

Thon Hotel Vika Atrium

På Thon Hotel Vika Atrium har vi 15 nyrenoverede mødelokaler med en moderne og behagelig atmosfære. Her passer det lige godt til mindre bestyrelsesmøder som til større konferencer.
Nøgle i app
Thon_Hotel_Vika_Atrium_Atriet

Thon Hotel Slottsparken

Slottsparken Konferencecenter er med sind 11 nyrenoverede og luftige konferencelokaler et perfekt udgangspunkt for store og små arrangementer.
Nøgle i app
Pausebuffet i Grotten øl- og vinbar, med høye stoler rundt bordet, vinskap i bakgrunnen, taklampe med fem store lyspærer over.